England and wales Cricket Board
Brief
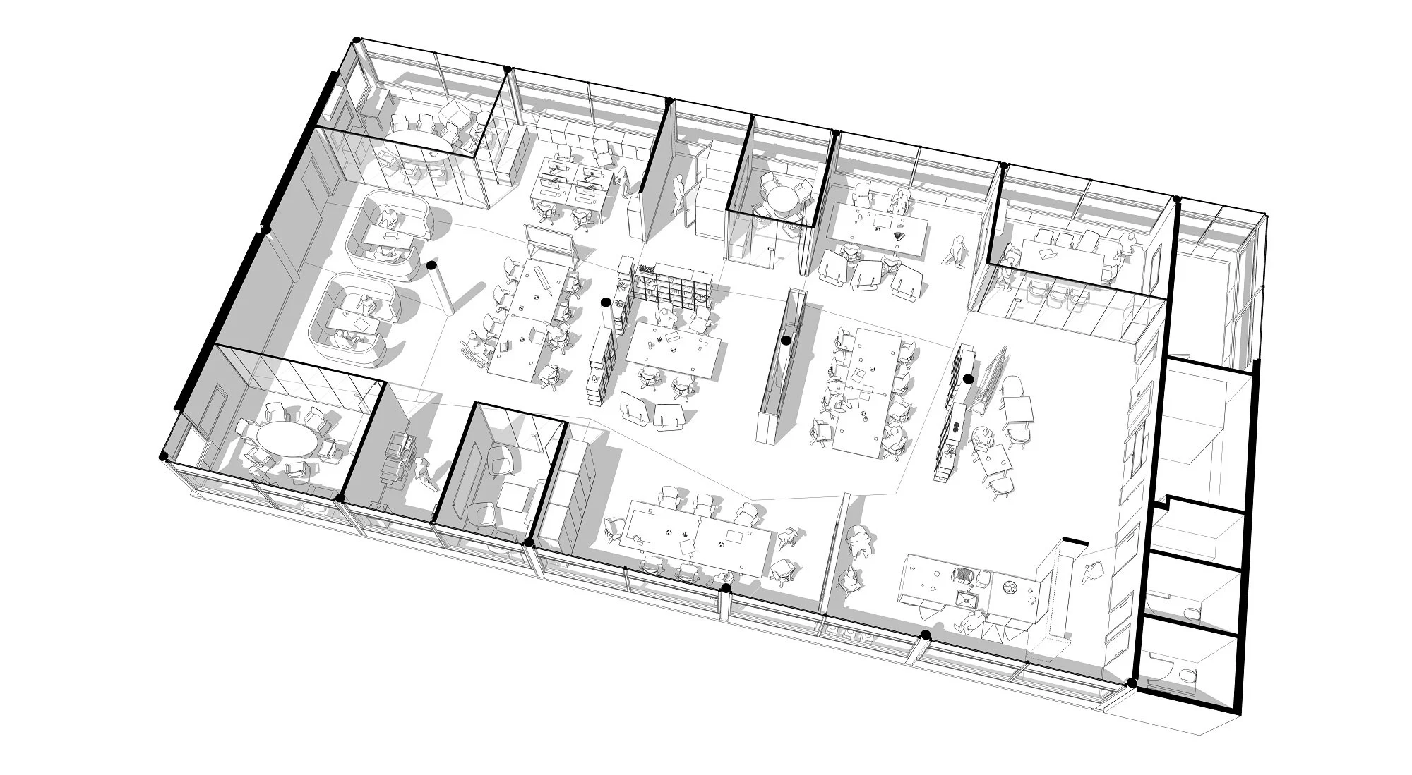
Project Details
- Project
- Hybrid Workplace
- Sector
- Home of Cricket
- Approx Size
- 1,295 m²
- Main Contractor Lomax Management
- Edit Scope
- Feasibility Study, Space Planning, Interior Design, FFE specification, Joinery design
Photography by Thierry Cardineau Photography
Design
Completion
OVERVIEW
In preparation for a return to work post pandemic, we were engaged to refurbish the existing England and Wales Cricket Board office space at Lord’s, and provide a tailored space aimed at hybrid ways of working. Key design considerations included: enlivening the workspace in order to help draw staff back from homeworking, creating a series of different workplace habitats over 4 floors to suit differing workplace needs, improving DDA access to workplace and refreshment facilities, and creating new dedicated joinery housing for the Men’s and Women’s ICC World Cup trophies.